导航 : EXPO21XX> FLUID21XX> H24:valves开关APAbwassertechnik
APAbwassertechnik
  • 提供配置文件
  • 传统上,我们生产高质量创新阀门

    自40年以来,我们参与开发和制造阀门,特别是在废水领域。

    产品范围显然包括工业应用和公用设施配件

    好客户服务高客户满意度当然
产品组合
  • 产品类

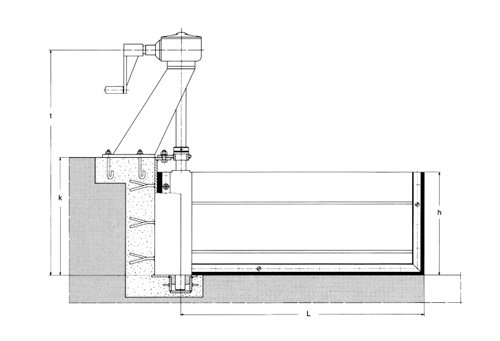
  • BAP下水道技术为您提供全套管道臂和存取器、调控装置和控制单元、笔头和非回流阀门从简单门阀开始抽取分叉或调制分叉到用液压阻塞或带远程控件浮流节流
      • 冲淡阀门

      • flashing开关:圆形、qaure或带抓柄矩形模型
        材料:不锈钢、铝和钢

        特征:
        • 软密封
        • 墙搭建
        • 滑动闭合
        • 简单安装维护
      • 抽取分数

      • 抽取分叉式样板:宽度模型、方形模型或长方形模型加格处理法
        材料:不锈钢、铝、钢和铸铁

        特征:
        • 软密封
        • 墙搭建
        • 滑动闭合
        • 简单安装维护
      • 薄荷调料

      • 圆形、方形或矩形模型

        素材:不锈钢、铝、钢和铸铁面值宽度

        DN100-2000以上并控阀版可交付

        特征:
        • 非兴起悬浮
        • 软封印
        • 挂起墙或挂起墙
        • 滑动闭合
        • 无斜开
        • 简单安装维护
      • 滑动阀门

      • 滑动阀或墙:unted、矩形或特殊推理

        材料:不锈钢、铝和钢
        维度bx100x100至2000x2
        四侧密封表交付

        :特征学
        • 非生成或上升螺旋
        • 软密封还有可能双侧
        • 挂起墙或挂起墙
        • 滑动闭合
        • 无色开机
        • 简单安装维护
      • 停止门

      • 停止栅栏或挂墙、矩形或特殊溢出门
        材料:不锈钢、铝和钢
        维度bx100x100至2000x2

        特征:
        • 带GARD控件和/或眼镜
        • 软密封三面密封
        • 挂起墙或挂起墙
        • 板上应请求测量
        • 无色开机
        • 简单安装维护
      • 下调分数

      • 下降笔头门矩形或特殊剖面
        材料:不锈钢、铝和钢
        维度bx100x100至2000x2

        特征:
        • 非生成或上升螺旋
        • 软密封三面或四面隔水
        • 挂起墙或挂起墙
        • 开口自由下降流率测量
        • 简单安装维护


      • 非返回阀门

      • 非返回阀门配有反重量、普通或藐视空格盖装墙,配有flange连接、Wall锚或推入块
        材料:不锈钢、铝、钢和铸铁

        特征:
        • 圆形、方形、矩形或特殊推理
        • 软封印
        • 简单安装维护
      • 分布器

      • 分布式各种填充或插件
        自锁蠕虫手推或驱动驱动
        材料:不锈钢、铝和钢

        特征:
        • 手电驱动
        • 软密封
        • 提供应用
        • 简单安装维护
      • 轨迹覆盖 weirs

      • 内嵌嵌套轨迹
        可调整跨度网络使用不锈钢、铝和钢等必备驱动
      • 反绑板 墙管
        管道安装

      • 板板、墙管和管道装配安装或铸入
        含不锈钢铁和铸铁(只有墙管和管道配件)。
        从DN50到DN1800a
      • 调控窒息阀门
        控件阀门

      • BAP浮点流装置完美构思节流并控制存储层规范主要用于雨水集水池、通道和污水厂小口的外围
        BAP浮点阵装置由不锈钢制成,并配有PA和POM等高质量聚合物

        向经典调控设备进步
        • 无水位内涵差
        • 调控设备自动工作,自除偏转
        • 无电工程
        • 不变名义卸载最大+/-3.5%计算径流
        • 名义卸载可修改性
        • 简单安装维护

      • 刀门阀

      • 刀门开关类型不同 并倾覆大扁
        一面或双端可置刀门阀
        GG25(ENJL1040)、GG40(ENJL1030)、1.4408和钢或不锈钢焊关闭板标准不锈钢

        特征:
        • 从DN50到DN1800以上
        • PN2到PN50的名义压力
        • 外朗连接EN 1092-2PN10
        • 软或硬密封
        • 个人驱动器
        • 简单安装维护

      • 门阀

      • 门阀类型和溢出长度不等
        软座F5机制GG25(ENJL1040)、GG40(ENJL1030)、1.4408或投钢
        全长 :
        F4(DIN3202)基础序列14(DIN588-1)
        F5DIN3202-1基础序列15DIN588-1

        特征:
        • 从DN50到DN1800以上
        • PN2到PN100的名义压力
        • flange连接EN1092-2PN10
        • 软50或硬座
        • 悬浮不锈钢可用
        • 简单安装维护

      • 摇动检查阀门

      • swing检验阀门 不同身体类型和全长
        Ody搭建GG25(ENJL1040)、GG40(ENJL1030)、铸钢和不锈钢磁盘相似素材变量反权重
        水力阻塞器 spring-软或硬座

        全长 :
        F4(DIN3202)基础序列14(DIN588-1)
        F5DIN3202-1基础序列15DIN588-1

        特征:
        • 软或硬坐
        • PN2bup至PN100的名义压力
        • flange连接EN1092-2PN10
        • 简单安装维护

      • 蝴蝶阀

      • 蝴蝶开关类型和全法GG 25(ENJL1040)、GG40(ENJL1030)、铸铁或焊接类型磁盘相似素材PEPDM、NBR、Viton或金属
        整体段数 :
        K1(DIN3202)基本序列20(DIN588-1)
        K3基础序列16
        F4(DIN3202-1)基础序列14(DINEN588-1)
        简单安装维护
      • 挂接头管道

      • 组合接头类型和总长度
        从DN50到1800或以上
        可修复不可修复类型
        Flange连接EN1092-2PN10
        PN2到PN100微调压力
        Flange关节由不锈钢铁和铸铁制成
      • 洪水控制/停止日志系统

        • 日志记录
        • 框架类
        • 混合框架
        • 起接装置停止日志
      • 激活

      • BAP下水道技术为您提供全方位启动器从简单手操作开始全控场电动驱动器对接液压驱动器
        我们建议你乐于获取协正驱动选择控制单元

        示例:BAP电动启动器
        电源输入:1800W
        名词紧张度:230V
        上载速度:40-140分钟
        Torwue:25-160Nm
        工具输入:
        重度:a102kg